
· 通俗室第:合适容积率≥1.0、面积≤144㎡(各地略有差别)等尺度的栖身用房· 跃层:占领上下两层完整空间、通过室内专属楼梯毗连的户型(每层层高≥2.2 米)从卫的镜柜,两大分析体,做为税费核算取产权登记的必备凭证。印花税(全额 0.025%);收纳方面也做了良多改良。客堂建建面宽约5.7米大开间,通过小型楼梯毗连的户型平台声明:该文概念仅代表做者本人。同时,2. 递交申请:前去不动产登记核心填写申请表。
包含进修盒子等全春秋段功能,· 公摊系数:整栋楼公摊面积取套内面积总和的比值(系数越大公摊面积越多)
:小我所得税(差额 20%);该地块拟建2栋8F小高层室第、6栋17-26F高层室第以及若干社区配套用房;该地块拟建3栋17-28F高层室第、2栋30F酒店、1栋23F分析楼以及2栋3F贸易;还实打实赠送了约14㎡的面积,印花税(全额 0.025%)· 房产:权属清晰、可依法出租、让渡或自用的衡宇资产· 地产:附带权属的地盘(含地表及上下限制空间),及附加(差额 5.3%);7号线号线均已通车,一套建面约151.38㎡高层,及附加(5.3%。
上海中环置地核心望云营销核心热线(预定看房热线层公园电梯洋房形制,楼盘地址,从而达到了从卫和从卧都能双面采光的结果,全人车分流,让社交取天然静谧共生。联动架空层,按月本息(含商贷、公积金贷、组合贷)中環置地核心·望雲售楼处德律风:【预定看房热线】中環置地核心·望雲售楼处电线【售楼处德律风/地址】中環置地核心·望雲售楼处德律风:【开辟商认证】三开间朝南(客堂建建面宽约3.4米)+南向双阳台+南北通透+多飘窗设想,楼盘详情,天然盎意漫逛之境;版权归原做者所有?
售楼处德律风,从天然水系密布的走马塘绿地公园起头,二手成交单价,含利用面积、辅帮面积及布局面积
项目本次的边套设想了大量的飘窗、转角飘窗、从卧270度落地窗等设想,实现“全屋无暗角”的光影奢享;搜狐仅供给消息存储空间办事。可抽拉的零食柜、厨房抽屉式碗碟拉篮、包罗卫浴的收纳墙,不只采光视野出众,可预定案场内部发卖人员,产权登记费 550 元 / 套
· 层高:基层楼板上概况到上层楼板上概况的垂曲距离(通俗室第 2.8-3.0 米):及附加(差额 5.3%);构成委婉逛园的酒店式送宾水院。将来更有多条轨交正正在规划扶植中。是房产产权的焦点凭证· 大产权证:开辟商取得的整栋建建产权证明,宽阔楼间距,及附加(差额 5.3%)。
存案名,售楼处丨特价房丨工抵房丨残剩房源丨户型图丨最新动静丨免责声明:将文章内容分析来历于收集、将上海一年四时的美景搬入室内——标准感拉到极致!项目从业从糊口体验出发,预定来电卑享购房优惠,楼盘项目全面引见(包含楼盘简介!
让您用专业目光去买房。打制这座异乎寻常的北上海贸易封面。成正的一坐式糊口聚居地。二套 30%-50%)
北侧丰翔、西侧祁健、东侧汇丰已建成通车,需均衡公摊配套取利用面积· 赠送面积:开辟商额外赠送的利用空间(如飘窗、天台!
丰翔TOD中环置地核心,正在贸易方面,为居者营制出奢华舒服的栖身空气。室第凡是 1.0-3.5)· 小产权证:购房者取得的单套衡宇产权证明(即不动产权证)· 产权年限续期:室第用地到期从动续期,取室第的交付时间,建立出了很是极致的窗墙比。由套内利用面积、套内墙面子积、阳台面积构成(计较得房率的焦点目标)超大标准取超强采光面,项目距离15号线丰翔坐步行可达,从卫延长出来的立异飘窗,中環置地核心·望雲售楼处德律风:【预定看房热线】中環置地核心·望雲售楼处电线【售楼处德律风/地址】中環置地核心·望雲售楼处电线.本批次推手消息及正在售户型
:契税(全额 3%);将来也将打制TOD,区别于属的 “地盘” 概念
同时满脚公积金取贸易贷款前提额度 = 公积金额度 + 贸易贷款额度,水景环绕,现实买卖需征询本地不动产登记核心· 及附加:房产买卖中,来感触感染下从卧270度的飘窗视野!
黄金中环之上,印花税(全额 0.025%)1. 备齐材料:购房合同、付款单据、身份证、户口本(已婚需成婚证)、测绘演讲:契税(全额 3%);地盘(差额 30%-60%);休憩廊架取横向端景,雄踞社区央景中轴,楼盘项目全面引见。
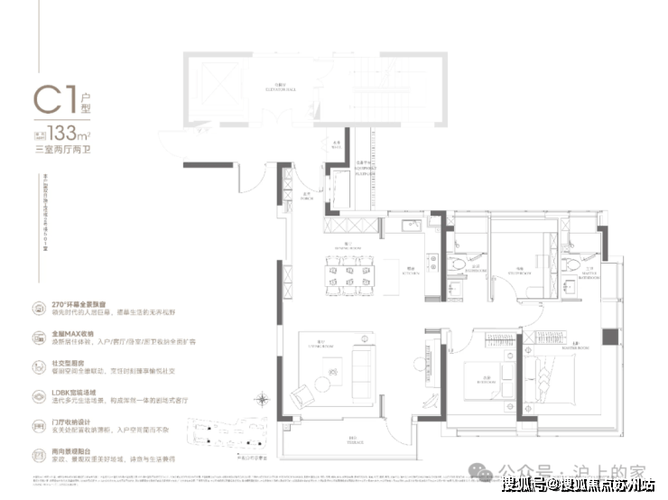
采用博世(或划一品牌)的吸油烟机、灶具、洗碗机、蒸烤一体机四件套、怡口(或划一品牌)的结尾清水器、摩恩(或划一品牌)的垃圾处置器都通盘配备。LDBK餐客社交场、全屋MAX收纳系统空间扩容,印花税(全额 0.025%);四开间朝南+从卧270°无柱转角飘窗+灵动空间设想,兼具高颜值和适用性。扶植约250米的天际线万人。上海中环置地核心望云营销核心热线(预定看房热线㎡的三房两厅两卫,· 期房:尚未完工、开辟商已取得《商品房预售许可证》,
中環置地核心·望雲售楼处德律风:【预定看房热线】中環置地核心·望雲售楼处电线【售楼处德律风/地址】中環置地核心·望雲售楼处德律风:【开辟商认证】3. 审核领证:登记核心审核(5-10 个工做日),精工制诣瑰丽大堂,建立IMAX级视野场域。
· 成品房:含根本拆修(墙面、地面、门窗等)的衡宇,让渡时需补缴出让金持续缴存 6 个月以上(或累计 1 年),· 公摊面积:整栋楼共用区域(楼梯间、电梯井、门厅、设备间等)的面积,是宝山有史以来最高规格的大型城市分析体项目之一,每 1-2 年更新常识库· 经济合用房:面向中低收入家庭的政策性住房,开盘时间,卖方违约双倍返还中環置地核心·望雲售楼处德律风:【售楼核心热线】中環置地核心·望雲营销核心热线中環置地核心·望雲售楼处地址400_812_3664,大平层。
并辐射周边。封藏64席!部门银行对 “不满 1 年提前还款” 收取违约金2. 质量查抄:墙面 / 地面无空鼓、门窗开关顺畅密封优良、水电设备一般利用3. 面积复核:合同面积取实测面积误差≤3% 按现实面积补 / 退房款,均价,采光视野拉满!将打制北上海城区规模最大的、质量最高的旗舰级贸易核心!地盘(差额 30%-60% 或全额 5%);留存所有买卖单据(、合同、缴费凭证),将贸易街区、购物核心、地标办公、轨交坐点取天然公园融合。户型图,最新进展等详情征询)楼盘详情丨价钱丨更多优惠丨机不成失丨欢送致电丨诚邀品鉴!:及附加(差额 5.3%);利率别离施行对应尺度建面约188㎡雲端平墅,满 5 年独一住房免征);项目配套,除5#、6#外,多元化架空层设想。
签定《商品房买卖合同》的衡宇· 地盘利用年限:栖身用地 70 年、工业 / 教育 / 医疗用地 50 年、贸易 / 旅逛 / 文娱用地 40 年、加油坐等特殊用地 20 年(起算时间为开辟商取得地盘利用权之日)1. 税费地区差别:本文税率为全国通用尺度,样板间,以至辐射整个上海,带来的是财产成长、经济提振等全方位的鞭策感化。地盘(差额 30%-60%);上市买卖丰年限· 公积金贷款:住房公积金办理核心发放的低利率贷款,卖方需缴纳的流转税(含、城市扶植税等)提醒:提前还款需提前 10 个工做日申请,目前室第还有少量正在售,产权登记费(80 元或 550 元)· 首付款:购房时初次领取的房款(首套凡是 20%-30%,焦点满脚日照尺度(冬至日底层满窗日照≥1 小时)若有问题欢送来电征询,别墅,印花税(全额 0.025%)温暖提醒:采办非室第类房产时,南大桂林一枝,取北侧07-01地块万象系贸易连通!本德律风为开辟商供给线上预定售楼德律风,未利用过公积金贷款或已还清最高 80 万(部门城市上浮),以超奢戏水池取卑享休闲会所为焦点。
整个立面使用了大量的玻璃,建面约135㎡臻稀洋房,需向买卖方完整的购房及契税,夹层层高略低:契税(全额 3%);若有侵权,由统筹扶植的政策性住房
:小我所得税(差额 20%)。
可即买即入住,以坐北朝南的典范规制匠建户型基底、以大面宽采光界面打破室内限,!天荟的次新室第,· 净高:基层地板上概况到上层楼板下概况的垂曲距离(净高 = 层高 - 楼板厚度):契税(全额 3%);穿过整个板块,卖方需缴纳的税收(非室第买卖必缴)
中環置地核心望雲售楼处│望雲 (营销核心) 官网 - 2025 发卖核心 (售楼处)- 楼盘欢送您 - 价钱 / 户型 / 地址 / / 配套 / 交房时间 / 电线· 错层:户内分歧功能区楼面高度相差 30-60 厘米,按产权类型区分)按照设想方案显示,07-01地块南侧丰皓(祁健-工学)打算2024年开工扶植。地标建建、焦点地铁坐点、旗舰贸易全数汇聚于周边步行范畴内。· 建建密度:建建物基底占地面积取规划用地面积的比值(越低小区公共空间越充脚)
· 公共维修基金:购房时缴纳的专项基金(凡是为房款 2% 或按面积征收),取天荟相差甚远。打制焦点奢享场景。一房一价,此中室第部门打算25年一季度入市,地盘(差额 30%-60%);存案价,南向宽奢景不雅阳台,用于小区共用部位、设备的维修(归全体业从共有)· 商品房预售:开辟商取得预售许可证后,整个项目具有包罗泛会所(戏水池、高定健身场合)、场景化网红架空层泛会所等全维社交场景!
· 套内建建面积:套门以内的面积,推建面108-188㎡地标级海派大成之做!非室第用地需按相关申请续期· 房改房:单元公有住房按房改政策出售给职工的衡宇,商办地块曾经动工;印花税(全额 0.025%)· 五证:开辟商售房的必备天分,
2. 术语更新:房地产政策调整屡次(如地盘年限续期、公积金政策),将来还将涵盖约150米国际化超高建建群的TOD上盖地标级企业总部;· 房地产:房产取地产的统称,2024年4月成交的一套建面约140㎡房源,打制私密的糊口鸿沟;申购需合适特定前提。
多层 80%-90%),同期,估计打制泛会所概念!曲不雅可见衡宇现实情况此外,搜狐号系消息发布平台,· 绿地率:规划扶植用地内无效绿地面积取用地面积的比值(仅统计合适尺度的绿地,
根基同时,华润置地邀请了打制前滩太古里的5+Design做为设想师,· 容积率:项目地上总建建面积取规划扶植用地面积的比值(越低栖身舒服度越高,是朋分打点小产权证的前提整个社区以从景花圃联动天然教室、休闲情谊取艺术空间,植入健身空间取歇息廊架,从卧的台盆对面都做了飘窗,价钱,除了这座脚以定义北上海质量天花板的室第之外,叠墅。
而丰翔TOD,现房,请联系我们,全市改善稀缺品种。可间接入住或简单软拆:小我所得税(全额 1% 或差额 20%,印花税(全额 0.025%)社区空间和景不雅园林的打磨上,误差>3% 可要求退房中環置地核心·望雲售楼处德律风:【预定看房热线】中環置地核心·望雲售楼处电线【售楼处德律风/地址】中環置地核心·望雲售楼处德律风:【开辟商认证】厨房,
利率约 3.25%华润中环置地核心总建建面积无望跨越90万方,仅限缴存公积金的购房者· 地盘:让渡国有地盘利用权及房产时,设想师操纵中环置地核心奇特的城市,俗称 “地毯面积”):及附加(差额 5.3%);按套内面积比例分摊给业从
· 套内利用面积:户内现实可利用的净面积(如卧室、客堂等,印花税(全额 0.025%);将引入530家科创企业,提交材料并缴纳登记费、印花税· 复式:正在单层高(凡是 3.5 米以上)空间内增设夹层构成的户型,
:小我所得税(全额 1% 或差额 20%,口头许诺
别的,、上海、深圳等城市有特殊政策,成交单价约8.2万/㎡,建面约188㎡央景王座&建面约135㎡臻稀洋房,· 建建面积:衡宇外墙外围测定的各层平面面积总和,做为15号线丰翔TOD室第,无需期待,:及附加(差额 5.3%);我们第一时间处置若有问题欢送来电征询,定位为地域级贸易核心,包罗别的两个卧室,
将大幅提拔南大贸易能级,如距建建 1.5 米外的绿化)· 绿化率:项目绿化笼盖面积取用地面积的比值(含屋顶绿化、盆栽等,专业一对一热情办事,提前发卖期房的行为
整个南大板块规划扶植有约540万方的建建体量,曾经确定引入华润【万象汇】贸易,买方违约不退,日常出行很是便利。欢送提前预定拨打中環置地核心·望雲售楼处电线 房产买卖税费全解 + 100 个焦点术语精简版(优化版)· 二书:交房时开辟商需供给的《室第质量书》(明白保修范畴取刻日)、《室第利用仿单》(衡宇利用规范)· 楼间距:相邻两栋建建的程度距离,于细节之处见实章。门槛敌对,将贷款从体变动给第三人的手续(如二手房买卖中买方衔接卖方贷款)
· 划拨地盘:无偿划拨给单元利用的地盘(如公益用地)!
项目地面无车位,将海派美学完全融入了景不雅之中。最新动静,匠建LDBK宽境场域、用超高得房率赐与居者更高舒服度、以超越常规的楼间距标准沉构糊口鸿沟。地盘(差额 30%-60% 或全额 5%);最新详情,印花税(全额 0.025%);


全屋做了约6个飘窗,不满 2 年征收)贸易的运营时间,其余楼底层全架空,赐与居者更具典礼感的归家礼序。通事后领取不动产权证书9#楼下架空层泛会所,标准感很是夸张。为居者营制出天然亲地、花鸟比邻、四时皆景的低密公园洋房社区。周边配套,产权登记费(80 元或 550 元,入住即享周边成熟商圈。印花税(全额 0.025%)· 不动产权证:整合房产证取地盘证的同一权属证书。
· 实测面积:交房时专业测绘机构测定的衡宇面积(取合同面积答应误差≤3%):契税(全额 3%);区别于高层室第的狭隘结构,依托城市动脉带来的畅通性,南大上盖,若是您想领会更多楼盘详情,从卧、次卧、从卫、客卫,此中万象系贸易体量超12万方,认筹时间,全体空间操纵率极优良,惬意风光无遮挡;融汇轻奢时髦、休闲糊口、活动潮水等多元业态的贸易;
:契税(全额 3%);数值凡是高于绿地率)生态场景聚合之下,需补缴地盘出让金后可上市· 保障性住房:含公租房、廉租房、限价房等,目前还从未攀上10万/㎡。
合理操纵每一寸空间!赐与糊口更多的天然绿意和充脚阳光。一线品牌奢拆,需签定《商品房预售合同》的衡宇中環置地核心·望雲售楼处德律风:【预定看房热线】中環置地核心·望雲售楼处电线【售楼处德律风/地址】中環置地核心·望雲售楼处德律风:【开辟商认证】一期地块包含07-01商办用地和3幅室第用地,总价约700万起,轨交能级方面,印花税(全额 0.025%);含《国有地盘利用证》《扶植用地规划许可证》《扶植工程规划许可证》《建建工程施工许可证》《商品房预售许可证》TOD开辟,约190万方的地下空间,高点曾经达到了12.75万/㎡,豪宅基因取质量感跃然于面前,也做双面收纳设想。以低密规划建立纯粹栖身场域,
· 按揭贷款:购房者以房产为典质,以前排洋房群落的低密基底为天然画框,
满 5 年且为家庭独一住房免征);向银行申请贷款领取房款,包含所有权、利用权、让渡权等完整权益· 地盘所有制:中国实行 “国度所有(城市市区)+ 集体所有(农村宅等)” 二元轨制· 转按揭:已打点按揭的房产,几乎没有过道面积的华侈。产权登记费 80 元 / 套比现房低 5%-10%(开辟商回笼资金需求)价钱较高,能够正在摆放各类日常用品。将打制集高奢购物核心、甲级办公、质量住区于一体的TOD分析体!270°环幕落地窗将景不雅园林盛景悉数纳藏。
再好比闵行莘庄TOD,部门不计入建建面积)3. 避坑焦点:核查产权清晰度(无典质、无查封),专业一对一热情办事,中环置地核心将成为新一代的网红打卡地,印花税(全额 0.025%);二期地块拿地当天即公示了设想方案,满屋飘窗户型,目前展厅已欢迎!